
Boomgaardstraat 179, Antwerpen
Gelegen op de bovenste twee verdiepingen van een charmante burgerwoning – met veel lichtinval, twee terrassen en een rustige ligging, precies op de grens tussen Berchem en Antwerpen-stad.
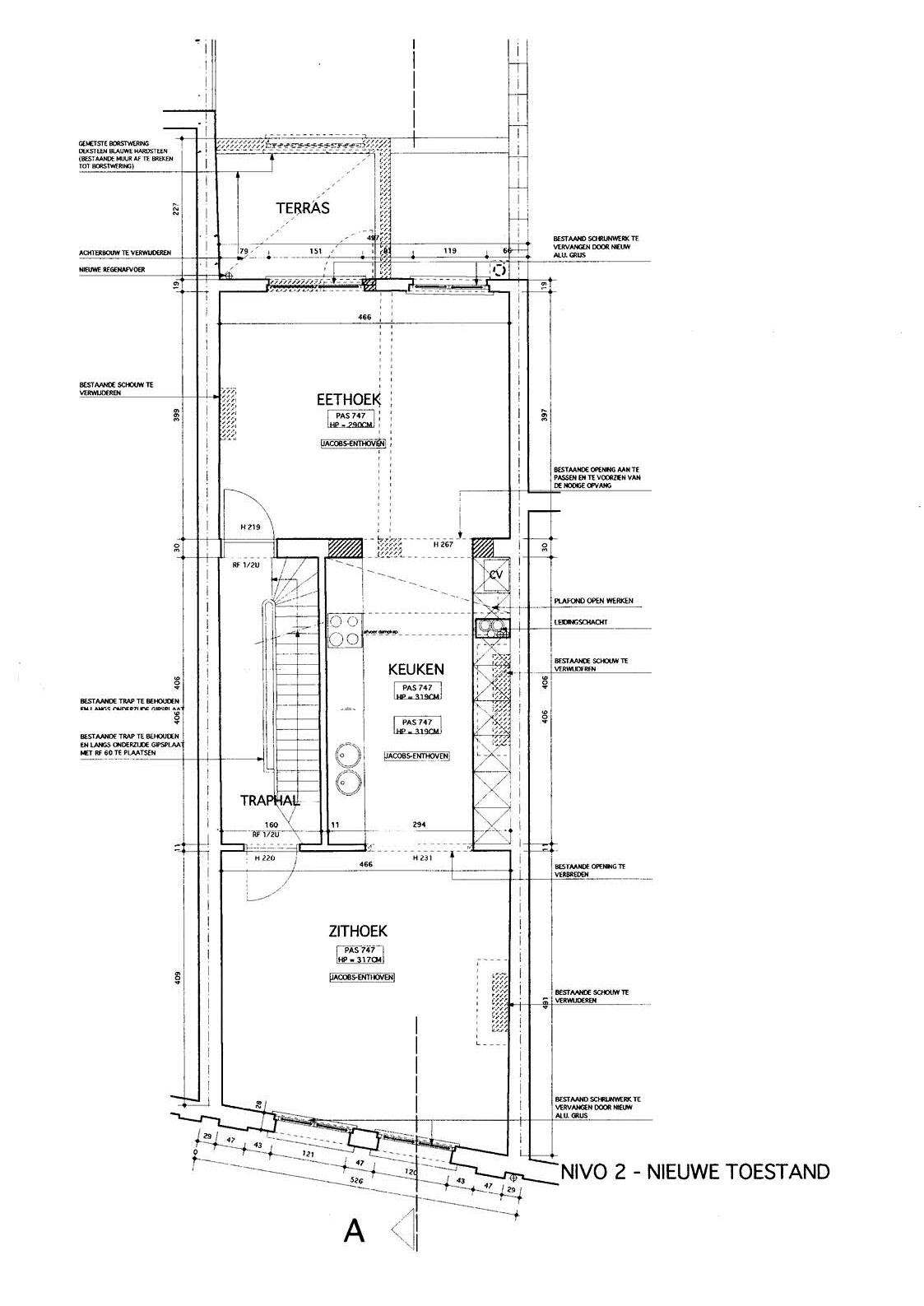
Tweede verdieping
Woonkamer (20 m²), open keuken met vide (Smeg gasvuur & vaatwasser), eetkamer (20 m²) en een gezellig terras.
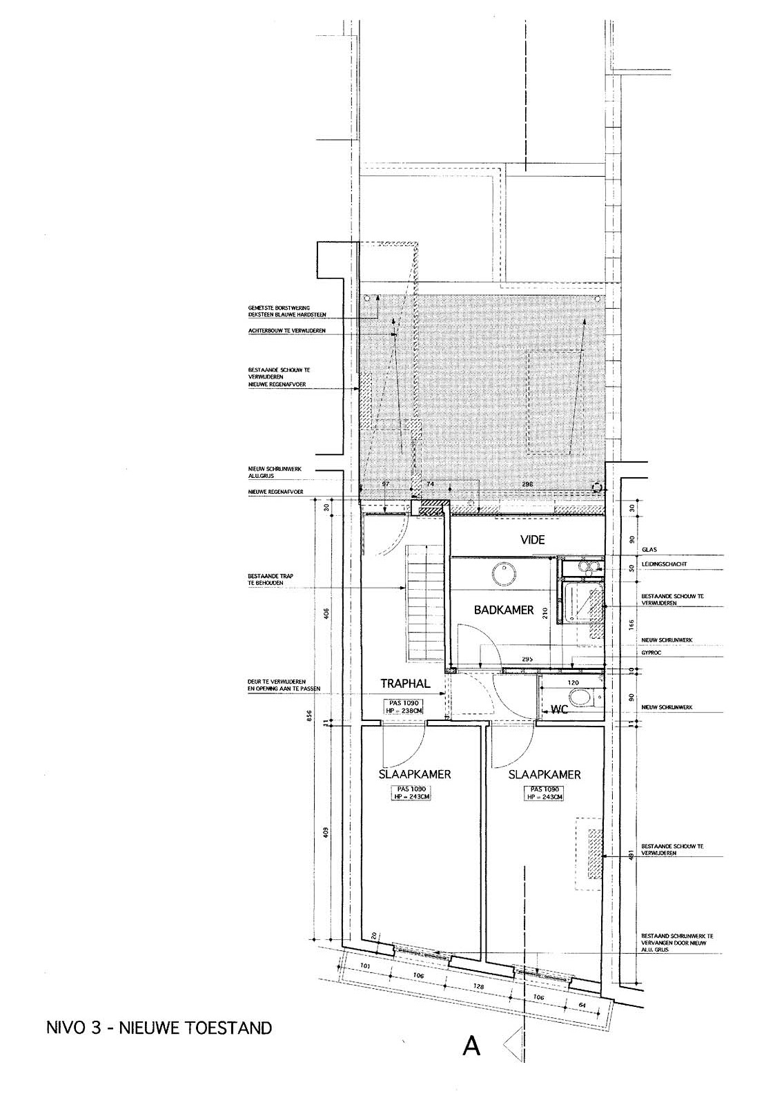
Derde verdieping
Twee slaapkamers, badkamer met inloopdouche, apart toilet en een zonnig dakterras van 20 m² met een verrassend mooi uitzicht.
Uniek voordeel: privé fietsenberging voor 2 fietsen + ruime kelder met plaats voor wasmachine en droogkast.
Op 200m van Berchem Station, 100m van het Groen Kwartier en vlakbij Zurenborg – alles op wandel- of fietsafstand.
De eigenaar woont op het gelijkvloers en de eerste verdieping (wat zorgt voor een aangename, rustige en goed onderhouden woning.)
Energiezuinig, goed geïsoleerd en voorzien van zonnepanelen. Verwarming op gas met een laag verbruik.
€1200 / maand, beschikbaar vanaf 1 december 2025 (rookvrij, geen huisdieren)
Contract: lieven.jacobs@creality.be - +32 475 70 52 69
















